Гость
Гость
Аккаунт удален

Регистрация: 01.01.1970

Сообщений: 188626

25.05.2011 в 21:48:21

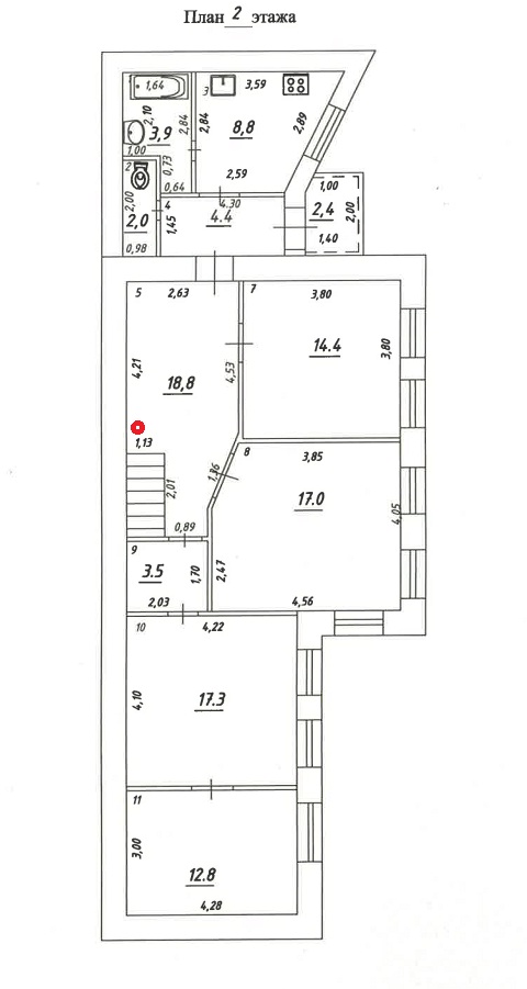
Здравствуйте уважаемые, форумчане . Я проживаю в старом фонде в 2х этажном кирпичном доме с деревянными перекрытиями. На втором этаже в квартире. Снизу живут соседи. Планирую ремонт, в связи с чем встал вопрос о замене труб ГВС и ХВС. Но если с ХВС более менее все ясно, то с ГВС имеются сложности. Отопление к соседям идет через меня. Подскажите пожалуйста,как можно заменить стояк, кот. на фото (на плане отмечен красным). Раз в сезон я подключаю шланг к верхнему крану и осуществляю спуск воздуха из системы. Можно ли избавится от расширительного бачка к которому идет труба спуска воздуха? Можно ли заменить стояк на полипропилен? Можно ли выносить кран спуска воздуха в другое удобное место (например вправо, там за стеной санузел) ? Заранее благодарю всех за помощь.

0
Вложение

Авторизуйтесь или зарегистрируйтесь, чтобы оставить комментарий.

Присоединяйтесь к самому крупному DIY сообществу