hifi
hifi
Местный

Регистрация: 04.01.2008

Москва

Сообщений: 659

03.06.2011 в 00:38:41

Здравствуйте уважаемые, в очередной раз обращаюсь к коллективному разуму. Купили новую квартиру, для меня очень важно чтобы всё относящееся к сантехнике и отоплению работало безупречно и приносило удовольствие в эксплуатации.

Дайте рекомендации любые, буду рад Квартира с автономным отоплением, выполнена стяжка, залиты пластиковые трубы отопления к радиаторам, в стену заделаны трубы к котлу в санузле пахабно залита каналья Есть мысль перенести котел в другое место, чтобы не торчал по центру кухни, кстати там же примерно выведен единственный ввод воды
Как в данном случае лучше поступить, где делать "сантехшкаф"? Перекладывать ли трубы (называются GALLAPLAST) к радиаторам?
Котел стоит фирмы daewoo как определить, хватит ли мне его производительности если будет три точки водозабора горячей воды и 4 радиатора отопления Ещё хотел сделать теплый пол на кухне и в санузле Не понятно с полотенцесушителем, если его не предусмотрели в системе отопления то ставить только электро или если быду переделывать можно его предусмотреть? Вообще, какие нюансы есть в проектировании такой системы? Впервые сталкиваюсь с газовыми котлами

Прилагаю фото Всем огромное спасибо

0
hifi
hifi
Местный

Регистрация: 04.01.2008

Москва

Сообщений: 659

12.08.2011 в 23:57:43

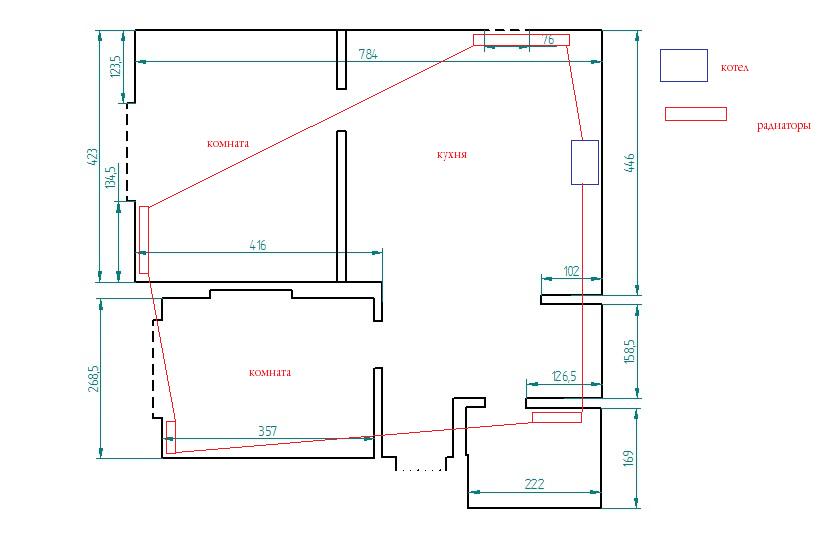
Назрел более конкретный вопрос. Решил что буду делать всю систему по новой Как определиться со схемой разводки отопления? Лучевая или последовательная. Прилагаю план квартиры, площадь небольшая всего 57м.кв. Сам склоняюсь к последовательной схеме от котла до дальнего радиатора по периметру квартиры Скорее всего медью. Имеет такая схема право на жизнь?

0
Вложение
hifi
hifi
Местный

Регистрация: 04.01.2008

Москва

Сообщений: 659

14.08.2011 в 22:32:48

Подскажите пожалуйста по фото какой размер трубы стояка и на какой переход?

0
Косожихин
Косожихин
Местный

Регистрация: 25.12.2010

Москва

Сообщений: 864

14.08.2011 в 22:38:44

32

0
hifi
hifi
Местный

Регистрация: 04.01.2008

Москва

Сообщений: 659

14.08.2011 в 23:02:56

спасибо

0
hifi
hifi
Местный

Регистрация: 04.01.2008

Москва

Сообщений: 659

16.08.2011 в 02:15:12

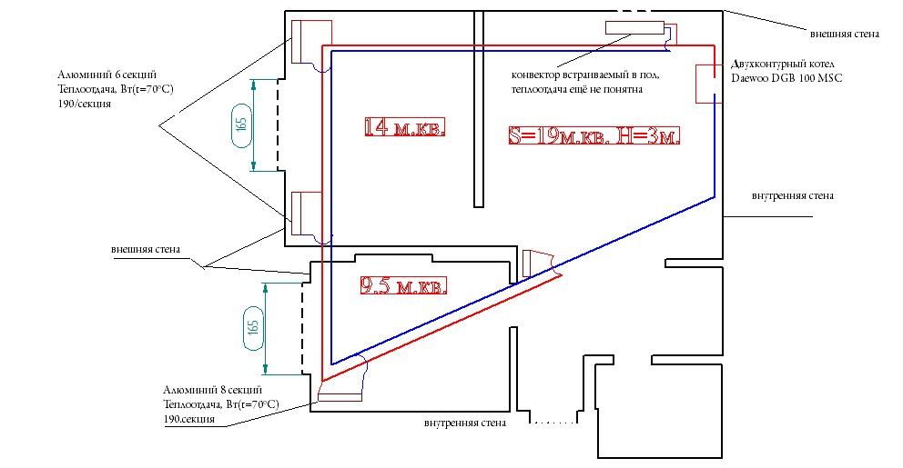
Набросал приблизительную схему отопления, посмотрите пожалуйста, имеет право на жизнь? и какие внести коррективы Правильно ли выбраны диаметры труб? Ещё большой вопрос, куда подключать ПС? Объект находится в г. Геленджик, поэтому можно сделать некую скидку на отсутствие отрицательных температур зимой Спасибо!

отдельно правая часть схемы немного детальнее

0
Вложение
hifi
hifi
Местный

Регистрация: 04.01.2008

Москва

Сообщений: 659

21.09.2011 в 23:55:43

Что- то пока нет советов:( Но я не отчаиваясь продолжаю углубляться в тему, почитывая интернет))

Назрела идея отказаться от двухконтурного котла и поставить одноконтурный BAXI ECO Four 1.14 F (6-14КВт) и бойлер косвенного нагрева литров на 100-120 для более комфортного обеспечения ГВС.

Поскольку площадь всего 57 м. боюсь что такой мощности котла будет с избытком, (прочитал в соседней ветке про увеличение объема системы и регулировку по комнатной температуре) у меня получается 36 секций что составит 36*190= 6,8 Квт. То есть котел будет работать на минимуме, это очень плохо?

Затем вопрос по бойлеру, (как его подобрать под этот котел) присмотрел Дражице 125л. по номиналу мощности при температ. отоп.воды 80 °C и расходу 310 л/час 10.3 Квт. Подойдет такой? Как происходит обеспечение горячей водой в летний период, когда отопление нужно выключить? Спасибо за ваши советы!

Перерисовал схему подключения радиаторов, оцените право на жизнь

0
Вложение

Авторизуйтесь или зарегистрируйтесь, чтобы оставить комментарий.

Присоединяйтесь к самому крупному DIY сообществу