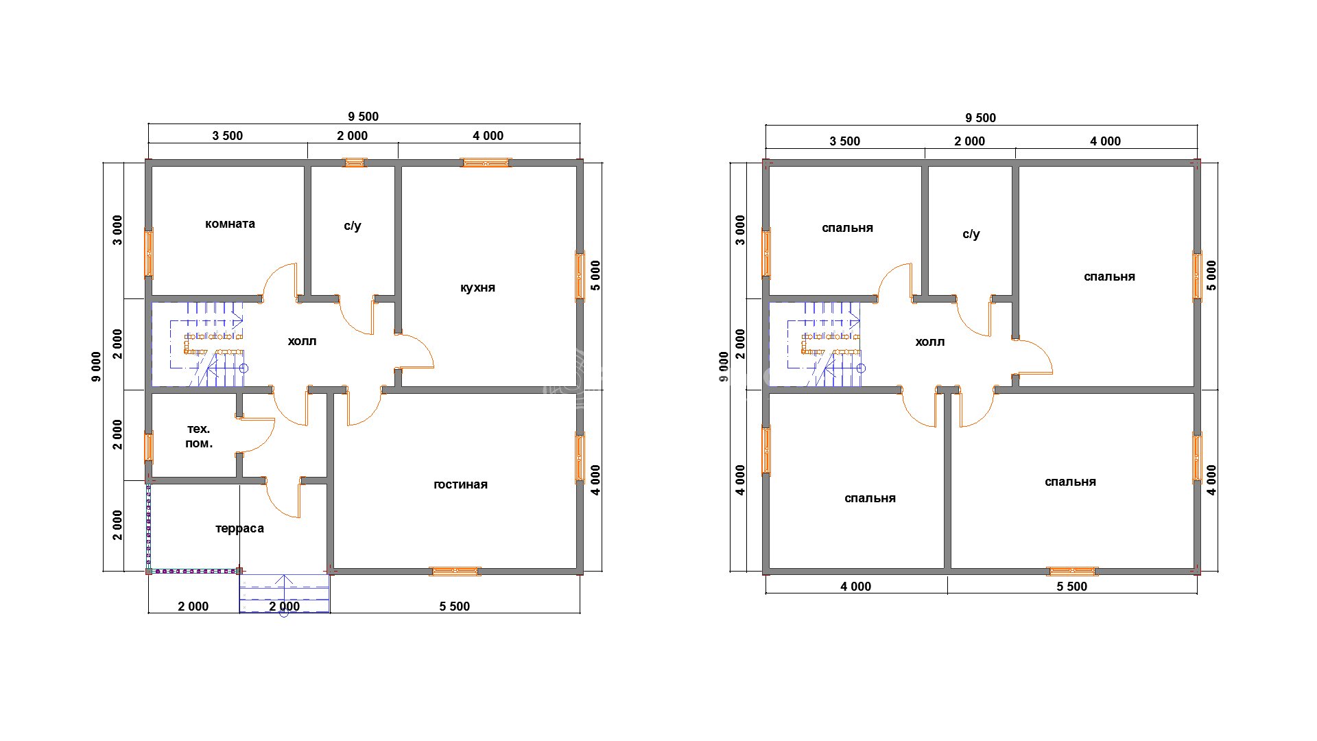
Добрый день. На данный момент идёт строительство деревянного брусового дома (проф. Брус), высота потолков 1эт-2.7м, 2эт.-2.3м. М. О. Ступинский район. Ищу профессионального электрика для комплексного монтажа электрики (щиток, розетки (только накладные), кабель каналы, распайки) без клемников и скруток!!! Обжим или пайка. Интересует стоимость, сроки. (план дома в приложении) Отвечу на любые вопросы.



.