)i(u|(
)i(u|(
Местный

Регистрация: 27.01.2013

Челябинск

Сообщений: 213

15.08.2013 в 19:40:41

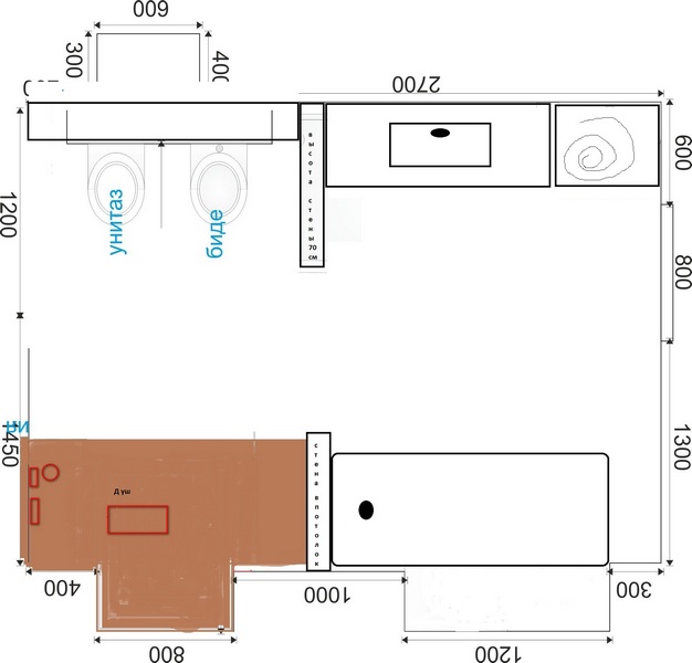
Помогите выбрать все необходимое для сан узла. Знаний по данным вещам минимальны. Хорошего качества за разумные деньги Нужно: Инсталляция для подвесного унитаза, а также сам унитаз Инсталляция для подвесного биде, а также биде Смеситель для раковины Смеситель для душа для скрытого монтажа (для верхнего душа с "потолка") Смеситель для душа однорычажный для скрытого монтажа (для лейки со шлангом) Все, что нужно для монтажа скрытой системы Ванна акриловая 170x75

0
)i(u|(
)i(u|(
Местный

Регистрация: 27.01.2013

Челябинск

Сообщений: 213

15.08.2013 в 19:48:07

Примерное размещение

0
Вложение

Авторизуйтесь или зарегистрируйтесь, чтобы оставить комментарий.

Присоединяйтесь к самому крупному DIY сообществу