gunter33
gunter33
Новичок

Регистрация: 30.10.2016

Феодосия

Сообщений: 5

30.10.2016 в 19:43:30

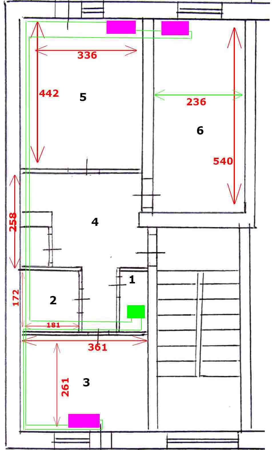
Помогите пожалуйста с выбором котла и схемой монтажа автономного отопления. Решили заделать автономку в квартире. Квартира двухкомнатная. Централизованного отопления считай что нет (радиаторы еле еле теплые). На схеме цифрами обозначены следующие объекты: 1-туалет; 2-ванна; 3-кухня; 4-коридор; 5-зал; 6-спальня. Красными цифрами обозначены габариты площадей. Планирую приобретать электрический (газовый отпадает по закону) котел для обогрева трех радиаторов. Сам котел на схеме обозначен зеленым прямоугольником. Радиаторы-прямоугольники с сиреневой заливкой в кол-ве трех штук. Котел планирую монтировать в туалете, затем через ванную контур идет к радиатору на кухне, после через ту же ванную и коридор в зал и спальню (на схеме трубы обозначены зеленым). И возвращается обратным ходом в туалет. Примерная длина всей системы 50 м, отапливаемая площадь около 40 м2. Котел только однофазный. Есть ли что то приличное в сегменте до 20 тыс. рублей? И обязательно ли брать котел со встроенным циркуляционным насосом и расширительным бачком, или это все можно монтировать отдельно? Помогите пожалуйста определиться с выбором и направьте в правильное русло реализацию монтажа и разводки системы. Буду очень признателен откликнувшимся)

0
Мегавольт.
Мегавольт.
Резидент

Регистрация: 27.06.2009

Рязань

Сообщений: 2645

30.10.2016 в 20:37:29

gunter33 написал: Планирую приобретать электрический (газовый отпадает по закону)

А на установку электрического разрешение уже получили? какова выделенная мощность на квартиру? Стандартных 3х КВТ будет маловато. Последовательная разводка по радиаторам не самое лучшее решение. Лучше применить тупиковую разделив её на 2 плеча. При этом ни чего не мешает (и даже не плохо бы) в ванне полотенцесушку сделать.

gunter33 написал: И обязательно ли брать котел со встроенным циркуляционным насосом и расширительным бачком, или это все можно монтировать отдельно?

как удобно. можно взять готовый котёл который будет содержать в себе всё необходимое (насос, расширительный бак, группа безопасности и возможно ещё какие то приятные мелочи), а можно весь этот набор взять отдельно. При этом сам котёл можно вообще самодельный сделать на ТЭНах для водогрея. типа такого (видео),но удастся ли его узаконить я не знаю.

0
В0д0пр0в0дчик
В0д0пр0в0дчик
Местный

Регистрация: 29.07.2016

Москва

Сообщений: 795

30.10.2016 в 21:20:22

gunter33 написал: Помогите пожалуйста определиться с выбором и направьте в правильное русло

Купите 2 масляных обогревателя, в кухню и санузлы - электро ТП. Будет дешево и сердито - самое правильное русло...

0
gunter33
gunter33
Новичок

Регистрация: 30.10.2016

Феодосия

Сообщений: 5

01.11.2016 в 19:55:05

Мегавольт. написал:

gunter33 написал: Планирую приобретать электрический (газовый отпадает по закону)

А на установку электрического разрешение уже получили? какова выделенная мощность на квартиру? Стандартных 3х КВТ будет маловато. Последовательная разводка по радиаторам не самое лучшее решение. Лучше применить тупиковую разделив её на 2 плеча. При этом ни чего не мешает (и даже не плохо бы) в ванне полотенцесушку сделать.

gunter33 написал: И обязательно ли брать котел со встроенным циркуляционным насосом и расширительным бачком, или это все можно монтировать отдельно?

как удобно. можно взять готовый котёл который будет содержать в себе всё необходимое (насос, расширительный бак, группа безопасности и возможно ещё какие то приятные мелочи), а можно весь этот набор взять отдельно. При этом сам котёл можно вообще самодельный сделать на ТЭНах для водогрея. типа такого (видео),но удастся ли его узаконить я не знаю.

Мегавольт., Прошу прощения, но не совсем ясно как это "Лучше применить тупиковую разделив её на 2 плеча"?))То есть просто от бойлера идет труба и, к примеру, через метра сделать "развилку" на кухню и на два радиатора в комнатах?А как тогда делать обратку? Заморачиваюсь с радиаторами, т.к. они уже куплены(биметалл). Думали что дадут разрешение на установку газ.котла...

0
Мегавольт.
Мегавольт.
Резидент

Регистрация: 27.06.2009

Рязань

Сообщений: 2645

01.11.2016 в 21:17:36

схема примерно такая. (прошу прощения, переделал из своей по быстрому)

gunter33 написал: Думали что дадут разрешение на установку газ.котла...

а почему не дали? какое основание?

0
Inch1964
Inch1964
Резидент

Регистрация: 25.03.2011

Пенза

Сообщений: 10110

01.11.2016 в 21:25:19

Мегавольт. написал: схема примерно такая

Схема неверная.

0

Гидравлический расчёт систем отопления. Теплорасчёт (расчёт утепления) домов и квартир.Контакты в профиле.

Мегавольт.
Мегавольт.
Резидент

Регистрация: 27.06.2009

Рязань

Сообщений: 2645

01.11.2016 в 23:01:27

Inch1964 написал: Схема неверная.

Обоснуйте. Ну то что надо проект сделать и расчёты.... и лучше всего у Вас ... это мы всё знаем. А по существу?

0
Acer
Acer
Местный

Регистрация: 10.02.2007

Томск

Сообщений: 274

02.11.2016 в 06:31:23

Масляные радиаторы ставьте. Намного дешевле выйдет, как по первоначальной стоимости за приборы, так и по обслуживанию. Вот только отказаться от ЦО может быть проблемно, смотря какие тараканы в местной организации теплоснабжения.

0
youmust1
youmust1
Новичок

Регистрация: 02.11.2016

Лондон

Сообщений: 26

02.11.2016 в 07:18:24

0
Inch1964
Inch1964
Резидент

Регистрация: 25.03.2011

Пенза

Сообщений: 10110

02.11.2016 в 08:04:36

Мегавольт., от того, что нахамили, только уронили о себе мнение окружающих. И в теме нафлудили.

0

Гидравлический расчёт систем отопления. Теплорасчёт (расчёт утепления) домов и квартир.Контакты в профиле.

youmust1
youmust1
Новичок

Регистрация: 02.11.2016

Лондон

Сообщений: 26

02.11.2016 в 08:44:38

0

Авторизуйтесь или зарегистрируйтесь, чтобы оставить комментарий.

Присоединяйтесь к самому крупному DIY сообществу