Добрый день!
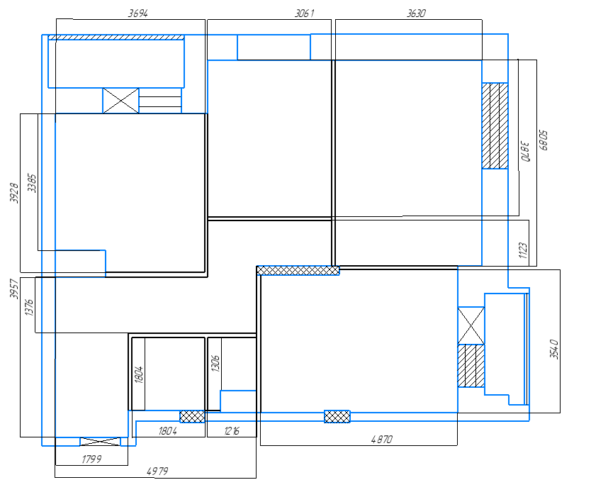
Имеется вот такая квартира с планировкой от застройщика. Не нравится, что часть средней комнаты (11.75м) "отведена" под коридор. Теоретически комната могла бы быть размером 15м, не хочется терять пространство.
Имеются две идеи:
- Снести перегородки с коридором, увеличить пространство за счет смежной комнаты и получить проходную гостиную комнату. В таком случае есть глобальный минус, комната становится проходной. Но есть плюсы - текущая модель не нарушает нормы.

- Данная идея формально может остаться " легальной", так как мокрая зона и зона кухни остается частично на месте старой кухни и занимает коридор. Не уверен на все 100% в легальности.
Глобальный минус такой идеи в том, что из за удаленности стояка не получится организовать вход в комнату бывшей кухни на старом месте, придется сделать вход из "кухни гостиной". Получается в итоге 3 изолированные комнаты и кухня гостиная, что меня полностью устраивает, вопрос только в легальности.
Может быть мой взгляд уже замылен и я не вижу других вариантов, предлагаю форумчан принять участие, приветствуются любые идеи)
Точных размеров нет, так как объект строящийся, прикинул размеры на основе чертежа из ДДУ,