vir
vir
Местный

Регистрация: 04.03.2011

Москва

Сообщений: 110

17.08.2012 в 19:22:49

критика приветствуется...

спасибо;)

0
Вложение
avmal
avmal
Резидент

Регистрация: 25.05.2006

Москва

Сообщений: 33773

17.08.2012 в 19:43:00

vir написал : критика приветствуется...

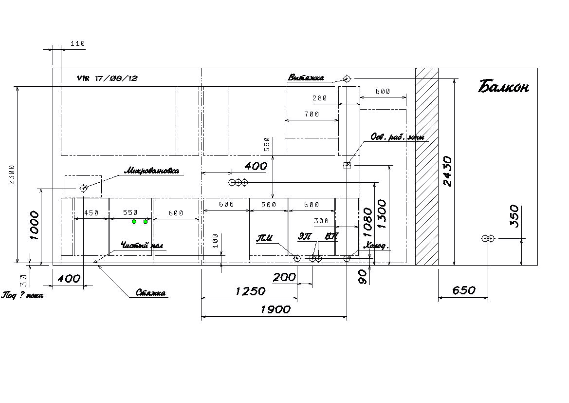
Если можно, то я с самого начала, а потом уже и к проблемам подберёмся. Розетки для встраиваемой техники - высота от уровня "чистого пола" 60-80мм. Розетки "фартука" - 1050мм от уровня "чистого пола".

Запрещены розетки под мойкой, стиральной машиной, морозильником, ПММ ... Пока это всё, а позднее продолжим.

0
vir
vir
Местный

Регистрация: 04.03.2011

Москва

Сообщений: 110

17.08.2012 в 20:02:30

avmal написал : Если можно, то я с самого начала, а потом уже и к проблемам подберёмся. Розетки для встраиваемой техники - высота от уровня "чистого пола" 60-80мм.- у меня 60 до оси Розетки "фартука" - 1050мм от уровня "чистого пола". у меня так же

Запрещены розетки под мойкой нет таких, стиральной машиной, морозильником, ПММ. Пока это всё, а позднее продолжим.

  ....

еще подрисовал..

переместил розетку для ПМ вправо..

0
Вложение
avmal
avmal
Резидент

Регистрация: 25.05.2006

Москва

Сообщений: 33773

17.08.2012 в 20:44:01

vir написал : еще подрисовал..

Лучше, если это будет план кухни - для телевизора, как я понимаю, у балкона не самое подходящее место.

0
vir
vir
Местный

Регистрация: 04.03.2011

Москва

Сообщений: 110

17.08.2012 в 21:37:44

avmal написал : Лучше, если это будет план кухни - для телевизора, как я понимаю, у балкона не самое подходящее место.

а почему нет? телик на противоположной стене:)

0
Вложение
avmal
avmal
Резидент

Регистрация: 25.05.2006

Москва

Сообщений: 33773

17.08.2012 в 21:47:08

vir написал : а почему нет?

У балконной двери, как я понимаю, будет стоять стол, за которым вы будете принимать трапезу, а смотреть лучше на стенку с венткоробом - сделайте там на высоте 1500мм розетки, включая антенную и будете смотреть телевизор сидя за столом, а не задирая голову на каждый звук из него. А потом, и готовить будет проще у плиты, если телевизор не сзади будет.

0
vir
vir
Местный

Регистрация: 04.03.2011

Москва

Сообщений: 110

17.08.2012 в 21:54:31

avmal написал : У балконной двери, как я понимаю, будет стоять стол, за которым вы будете принимать трапезу, а смотреть лучше на стенку с венткоробом - сделайте там на высоте 1500мм розетки, включая антенную и будете смотреть телевизор сидя за столом, а не задирая голову на каждый звук из него. А потом, и готовить будет проще у плиты, если телевизор не сзади будет.

тогда нужно шкаф подвесной убирать...а его жалко..кухня маленькая

0
avmal
avmal
Резидент

Регистрация: 25.05.2006

Москва

Сообщений: 33773

17.08.2012 в 22:02:17

vir написал : тогда нужно шкаф подвесной убирать...а его жалко..кухня маленькая

Повесьте над столом. Не у вас одного маленькая кухня.

0
web-rr
web-rr
Резидент

Регистрация: 17.07.2011

Саратов

Сообщений: 5424

17.08.2012 в 22:10:14

avmal написал : Розетки "фартука" - 1050мм от уровня "чистого пола".

Это не догма, а ориентир!

0
vir
vir
Местный

Регистрация: 04.03.2011

Москва

Сообщений: 110

17.08.2012 в 22:13:19

avmal написал : Повесьте над столом. Не у вас одного маленькая кухня.

убедили нарисую стол и посмотрю как телик над ним повесить

Остальное нормуль?:swoon

0
camper
camper
Резидент

Регистрация: 20.12.2009

Новороссийск

Сообщений: 1921

17.08.2012 в 22:25:51

avmal написал : Розетки для встраиваемой техники - высота от уровня "чистого пола" 60-80мм.

А почему не 30? Скажите.

0

Авторизуйтесь или зарегистрируйтесь, чтобы оставить комментарий.

Присоединяйтесь к самому крупному DIY сообществу