oops!!!
oops!!!
Местный

Регистрация: 04.10.2006

Кемерово

Сообщений: 177

13.03.2007 в 12:47:23

в общем получил проект электроснабжения жилого дома. однофазазное электроснабжение 220 в.

схема ввода взята вот отсюда http://tipovoy-proekt.narod.ru/tipovik.html

5.407-155.94
"Вводы линий электропередачи до 1кВ в производственные, административные, бытовые и жилые помещения в сельской местности"

ввод воздушный сип 2а как я понял перед водом в дом к нулю присоединяется заземляющий проводник раз далее в щитке ставится заземляющая шина к которой присоединяются все заземляющие проводники от потребителей и тоже отдельно заземляется два. и третье система уравнивания потенциалов все металлические детали дома (трубопровод, арматура крыша) также тоже выводятся отдельно на заземляющую шину и заземляются снова.

вопрос правильно ли это понял и зачем нужно столько заземлений??

0
ВТБ!
ВТБ!
Дилетант

Регистрация: 29.10.2005

Москва

Сообщений: 27558

13.03.2007 в 13:32:59

oops!!! написал : перед водом в дом к нулю присоединяется заземляющий проводник раз

На опоре? Повторные заземления лишними не бывают.

в щитке ставится заземляющая шина к которой присоединяются все заземляющие проводники от потребителей и тоже отдельно заземляется

Шина PE во во вводном устройстве (ВУ или ВРУ). К ней присоединяются проводники PE в составе групповых линий или линий к распределительным щиткам; проводник PEN от ВЛ; проводник PE к главной заземляющей шине (ГЗШ); проводник N к вводному зажиму N автомата/пакетника/рубильника/неавтоматического выключателя.

система уравнивания потенциалов все металлические детали дома (трубопровод, арматура крыша) также тоже выводятся отдельно на заземляющую шину и заземляются снова

К ГЗШ подключаются все эти коммуникации, заземлители с нормированным сопротивлением и проводник к шине PE в ВУ.

0

Следование моим советам вредит кошельку

ВТБ!
ВТБ!
Дилетант

Регистрация: 29.10.2005

Москва

Сообщений: 27558

13.03.2007 в 13:35:31

oops!!! написал : зачем нужно столько заземлений??

Если ВУ и ГЗШ расположены недалеко друг от друга и нет проблем с прокладкой проводников PE, тогда шину PE и ГЗШ объединяют, размещают в щитке ВУ и называют шиной PE.

0

Следование моим советам вредит кошельку

oops!!!
oops!!!
Местный

Регистрация: 04.10.2006

Кемерово

Сообщений: 177

14.03.2007 в 09:06:08

понял, кашу маслом не испортишь.... буду все заземлять...

0
ВТБ!
ВТБ!
Дилетант

Регистрация: 29.10.2005

Москва

Сообщений: 27558

14.03.2007 в 09:48:31

oops!!!

Вы бы выложили сюда схемку - во избежание двусмысленностей. (Вдруг мы о разном говорили?)

0

Следование моим советам вредит кошельку

oops!!!
oops!!!
Местный

Регистрация: 04.10.2006

Кемерово

Сообщений: 177

14.03.2007 в 12:47:13

понял отсканирую и выкину... завтра)))

0
oops!!!
oops!!!
Местный

Регистрация: 04.10.2006

Кемерово

Сообщений: 177

15.03.2007 в 09:27:47

в общем загрузить фото не удалось ссылка на альбом с фото
http://photofile.ru/users/alex050777/2527315/

0
ВТБ!
ВТБ!
Дилетант

Регистрация: 29.10.2005

Москва

Сообщений: 27558

15.03.2007 в 10:00:41

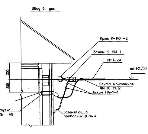
Что-то с вводом напутано. У СИП-2А обе жилы изолированы, анкер соответствующий, монтажная лента и заземление не нужны. И в дом его заводить без крайней необходимости не стоит, лучше сразу на улице перейти на медь.

0

Следование моим советам вредит кошельку

Вложение
oops!!!
oops!!!
Местный

Регистрация: 04.10.2006

Кемерово

Сообщений: 177

15.03.2007 в 10:11:38

почему напутано? чем то нужно крепить СИП - для этого крюк с зажимом... провод перед крюком распускается судя по схеме и крепится ноль (он же несущий) зажимом к крюку. вот после крюка к нулю можно и медь присоединить (тоже 16 квадратов?) и заземлить ( или можно заземлить уже в щитке?)
а вообще пусть идет до узо люминий а на выходе поставить медь...

0
oops!!!
oops!!!
Местный

Регистрация: 04.10.2006

Кемерово

Сообщений: 177

15.03.2007 в 10:19:12

а если на улице переходить на медь ( а это нарушается целостность фазы) то появляется (для меня) возможность подключиться до счетчика)))) в принципе я за но как на это энергетики смотреть будут??))

0
ВТБ!
ВТБ!
Дилетант

Регистрация: 29.10.2005

Москва

Сообщений: 27558

15.03.2007 в 10:25:33

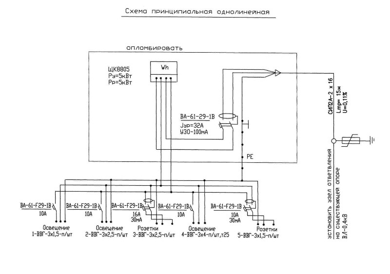
В схеме вызывает неприятие идея опломбировать шину Pe. Она должна быть доступна для ревизии и обслуживания.

Общее УЗО должно быть типа S. Но я бы предложил поставить на входе одно общее УЗО на 30мА - на двух УЗО сэкономите.

Что это за линия 3*4 на освещение? Очень большая длина?

0

Следование моим советам вредит кошельку

Вложение

Авторизуйтесь или зарегистрируйтесь, чтобы оставить комментарий.

Присоединяйтесь к самому крупному DIY сообществу