dkorogodin
dkorogodin
Новичок

Регистрация: 07.01.2013

Москва

Сообщений: 80

12.12.2017 в 11:38:57

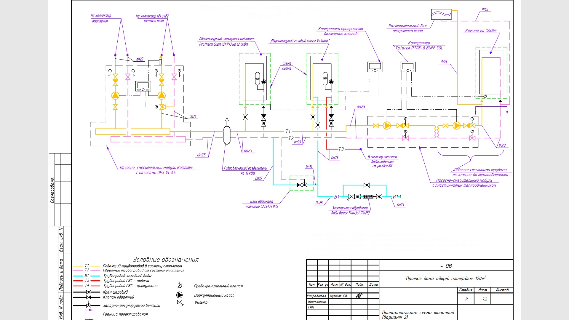
Доброго всем дня. Вот наконец то я и построил дом. Теперь стоит вопрос отопления. Проектировали, но что то мне кажется, что требует доработок. Сначала ТЗ на разработку было такое: По первому этажу: теплый пол во всех помещениях, радиаторы биметалл под окнами, в полу под дверью запасного выхода и большого фасадного окна -встроеные в пол радиаторы скрытого типа. Второй этаж: теплые полы. Котлы: Система отопления состоит из 2х котлов и печи с водяным контуром типа ангара аква. Теплоноситель нагревается либо газовым конденсационным котлом либо печью, если заканчивается газ, печь не топится и температура падает до грани включения резерва, систему поддерживает трехфазный электрокотел. Расположение газового котла-кухня., электрокотла-под лестничным маршем на второй этаж, каминопечь в гостинной первого этажа. Пирог стен и крыши: Стены: газосиликатный блок, шириной 400мм и плотностью D600, после чего образован вентилируемый фасад 7см и обложен одинарным облицовочным кирпичем. Межэтажные перекрытия между 1 и 2 этажом : плиты ПК пустотелые. Перекрытие между 2-ым этажом и крышей по деревянным балкам. Крыша: дом сделан основной и примыкающей частью. Основная часть(самая высокая)утеплена по перекрытию(по деревянным балкам). Утепление выполнено 3-я слоями пенопласта( 1 слой = 60мм)плотностью с50. Примыкающая часть утеплена под скат крыши также 3-я слоями пенопласта с50. Все стыки пропенены. Фундамент: ленточный, на глубину 1.5 метра. Внутрь фундамента произведена обратная засыпка глины, 15см песок, 15 см щебень и отлита 10 см стяжка пола.

Позже, понимаю, что не эффективно использовать двухконтурный газовый котел, т.к. затраты на его обслкживание и ремонт слишком большие. Вопрос: правильно ли будет в этой системе добавить бойлер косвенного нагрева и систему гвс циркуляционного типа + полотенцесушители от гвс. Еще один вопрос: есть мысль на основную систему отопления повесить два здания (баня и маленькая летняя кухня, )чтобы их не размораживало зимой и была возможность , при потребности , быстро их запустить. К обоим зданиям проложен свой водопровод. Отопление каждого осущесталяется сейчас электроконвектором в 2кВт. - текст списка

0
cineman
cineman
Резидент

Регистрация: 12.06.2008

Москва

Сообщений: 15975

12.12.2017 в 12:30:45

Биметаллический радиатор в частном доме - первое, что бросилось в глаза. Дальше ещё интереснее. Труба Rehau RauthermS размера 16х2. И совсем я удивился существованию насоса UPS 25-60 в бронзовом корпусе. Налицо попытка развода на материалы.

0
SergSB
SergSB
Резидент

Регистрация: 20.07.2010

Ялта

Сообщений: 4021

12.12.2017 в 12:41:55

Да еще и вентиль, который стоит """ (я про Рифар). В бронзовом недостаточно элитно - на Рублевке принято брать только в золотом ! Да там много чего Рехау. Еще и полипропилен есть - почему не все на Пексе сделать ? Да и п/с Керми. Точно деньги, наверное, с неба падают ?!

0
Inch1964
Inch1964
Резидент

Регистрация: 25.03.2011

Пенза

Сообщений: 10110

12.12.2017 в 12:47:22

dkorogodin, Похоже не производился ни расчет теплопотерь, ни гидравлический с теплотехническим расчетом. Если их действительно нет - считаю проект просто "веселыми картинками", т.е. фейковым.

0

Гидравлический расчёт систем отопления. Теплорасчёт (расчёт утепления) домов и квартир.Контакты в профиле.

SergSB
SergSB
Резидент

Регистрация: 20.07.2010

Ялта

Сообщений: 4021

12.12.2017 в 12:50:13

Да - это все картинки или еще есть что-то ?!

0
Inch1964
Inch1964
Резидент

Регистрация: 25.03.2011

Пенза

Сообщений: 10110

12.12.2017 в 12:56:16

dkorogodin написал: понимаю, что не эффективно использовать двухконтурный газовый котел, т.к. затраты на его обслкживание и ремонт слишком большие. Вопрос: правильно ли будет в этой системе добавить бойлер косвенного нагрева и систему гвс циркуляционного типа + полотенцесушители от гвс.

Далеко не ко всякому двухконтурному котлу можно подключить бойлер косвенного нагрева (БКН). Обычно можно только к одноконтурному котлу правильно подключить.

Также выбор бимрадиаторов - плохой выбор. Дорого и некомфортно.

Использовать ПЦ в закрытой системе с ТТкотлом и пластиковыми трубами - рисковать взрывом котла или свариться в кипятке. Разделять же ТТкотел и остальную систему через пластинчатый теплообменник (ПТО) - дорого и безсмысленно. И даже с ПТО система остается опасной так, как она "спроектирована".

Трассировка теплых полов неграмотная. Нет расчета теплоотдачи ТП и расчета температур поверхностей ТП. Указана температура поверхности ТП +28 градусов, при максимально допустимой +26 (в зонах постоянного пребывания людей). Не сделаны краевые (граничные) зоны ТП.

Короче, не проект, а полный обман заказчика. Один только ненужный пластинчатый теплообменник с ненужным насосом уже заставит заказчика выбросить на ветер несколько десятков тысяч рублей.

Этот проект сто рублей что-ли стоил? Или студенты сделали за полторашку самого дешевого пива?

0

Гидравлический расчёт систем отопления. Теплорасчёт (расчёт утепления) домов и квартир.Контакты в профиле.

dkorogodin
dkorogodin
Новичок

Регистрация: 07.01.2013

Москва

Сообщений: 80

12.12.2017 в 13:24:37

Ну не полторашку стоил, но около 6000 руб. Я не шибко в этом спец, вот и залал вопрос. Да, стоимость материалов слишком завышена. Это я тоже увидел. Матераалы -фиг бы с ними. Есть аналоги. Расчет теплопотерь делался. Наверное я косноязычно выразился, но котел хочу поставить одноконтурный, вместо двухконтурного + бойлер косв.нагрева

0
dkorogodin
dkorogodin
Новичок

Регистрация: 07.01.2013

Москва

Сообщений: 80

12.12.2017 в 13:28:33

Inch1964, со слов расчеты делались, но в проекте их у меня нет

0
dkorogodin
dkorogodin
Новичок

Регистрация: 07.01.2013

Москва

Сообщений: 80

12.12.2017 в 13:36:17

Я понял что: трубы для радиаторов нет смысла тянуть полипропилен, а делать на пексе. Теплообменник пластинчатый мне тоже показался ненужным, т.к. есть два теплосмесительных узла на этажах. Не понял на счет биметал.радиаторов. Их в домах не ставят? Керми заменю на что то дешевле но с этими же ТТХ.

0
dkorogodin
dkorogodin
Новичок

Регистрация: 07.01.2013

Москва

Сообщений: 80

12.12.2017 в 13:40:55

Inch1964 написал:

dkorogodin написал: понимаю, что не эффективно использовать двухконтурный газовый котел, т.к. затраты на его обслкживание и ремонт слишком большие. Вопрос: правильно ли будет в этой системе добавить бойлер косвенного нагрева и систему гвс циркуляционного типа + полотенцесушители от гвс.

Далеко не ко всякому двухконтурному котлу можно подключить бойлер косвенного нагрева (БКН). Обычно можно только к одноконтурному котлу правильно подключить.

Также выбор бимрадиаторов - плохой выбор. Дорого и некомфортно.

Использовать ПЦ в закрытой системе с ТТкотлом и пластиковыми трубами - рисковать взрывом котла или свариться в кипятке. Разделять же ТТкотел и остальную систему через пластинчатый теплообменник (ПТО) - дорого и безсмысленно. И даже с ПТО система остается опасной так, как она "спроектирована".

Трассировка теплых полов неграмотная. Нет расчета теплоотдачи ТП и расчета температур поверхностей ТП. Указана температура поверхности ТП +28 градусов, при максимально допустимой +26 (в зонах постоянного пребывания людей). Не сделаны краевые (граничные) зоны ТП.

Короче, не проект, а полный обман заказчика. Один только ненужный пластинчатый теплообменник с ненужным насосом уже заставит заказчика выбросить на ветер несколько десятков тысяч рублей.

Этот проект сто рублей что-ли стоил? Или студенты сделали за полторашку самого дешевого пива?

Inch1964, на ваш взгляд использовать большой теплоаккумулятор? В моем случае это не тт, а печь Ангара Аква, которой иногда (по желанию) буду отапливаться, чтобы не жечь СУГ

0
Inch1964
Inch1964
Резидент

Регистрация: 25.03.2011

Пенза

Сообщений: 10110

12.12.2017 в 14:22:42

dkorogodin написал: Расчет теплопотерь делался.

И где он?

dkorogodin написал: котел хочу поставить одноконтурный, вместо двухконтурного + бойлер косв.нагрева

Ставьте. Вот только проект Вам дали, к сожалению, непригодный. Так что хоть меняй котел, хоть не меняй.

dkorogodin написал: со слов расчеты делались, но в проекте их у меня нет

Если бы они делались, их бы Вам дали. Вот если делаю расчеты, то и отдаю не только результаты, но и файлы в формате расчетных программ, чтобы заказчик мог дешево и быстро проверить правильность моих расчётов (сделать аудит) у других независимых проектировщиков. А держать результаты расчетов в тайне от заказчика какой смысл? Да простой. Их просто не было.

dkorogodin написал: трубы для радиаторов нет смысла тянуть полипропилен, а делать на пексе

Системы по тройниковой схеме и лучше и дешевле делать из меди под пайку. Медь в 99% случаев мои заказчики сами паяют. Научиться можно максимум за час.

dkorogodin написал: Не понял на счет биметал.радиаторов. Их в домах не ставят?

Они дороже и хуже по комфортности, нежели стальные панельные радиаторы.

0

Гидравлический расчёт систем отопления. Теплорасчёт (расчёт утепления) домов и квартир.Контакты в профиле.

Авторизуйтесь или зарегистрируйтесь, чтобы оставить комментарий.

Присоединяйтесь к самому крупному DIY сообществу