MADONNA написал: даже обидно - мой кулинарный гений оказался востребован лишь на 1%.
будь гениальна в востребуемой области приготовь человеку барашка так чтобы он удивился :)
13.08.2023 в 14:00:21
MADONNA написал: даже обидно - мой кулинарный гений оказался востребован лишь на 1%.
будь гениальна в востребуемой области приготовь человеку барашка так чтобы он удивился :)
14.08.2023 в 08:56:08
В раздумьях над балками перекрытий и опалубками Вроде так ничего

Narrenfreiheit
14.08.2023 в 11:02:38
да, когда ее разопрет - они будет иметь примерно такой вид :) но если пофиксить сверху - то может получиться классика , обычная прямоугольная балка а где фокусы ? двутавровое сечение для экономии ? заполнение балластом неактивных зон ? подогрев и пред.напряжение арматуры ? :)
14.08.2023 в 13:07:01
MADONNA, зачем верхние бруски внутрь пихать? Чтоб не как у всех? И чтоб потом помучиться при отделке? И вроде раньше речь шла о монолитном перекрытии без балок....
14.08.2023 в 13:14:02
fhntv, Я задумала на балке создать полочки для профнастила - что бы потом перекрытия залить Примерно так:

Narrenfreiheit
14.08.2023 в 13:22:32
BV, На предыдущем эскизе я обозначила шурупы - что бы было понятно как и в какой последовательности я собираюсь снимать опалубки. Если бруски окажутся снаружи - то открутить шурупы не получится. Ах, саморезы, пардон муа.
Narrenfreiheit
14.08.2023 в 17:47:38

Балка залита! Немного зловещей формы опалубки получились.
Narrenfreiheit
14.08.2023 в 18:17:08
MADONNA,
И тогда уж сразу - схема армирования места опирания перекрытия на колонну...?
14.08.2023 в 18:30:14
MADONNA написал: fhntv, Я задумала на балке создать полочки для профнастила - что бы потом перекрытия залить Примерно так:
MADONNA, расскажите, насколько легко бруски будут выниматься из бетона, если не были обернуты пленкой...
14.08.2023 в 20:15:47
BV,
И тогда уж сразу - схема армирования места опирания перекрытия на колонну...?
В моем «проекте» нет опирание перекрытий на колонны Вот скелетная схема первого этажа (план):

Я ее кстати приводила уже (разрез). Но неважно.
Вы ранее писали, что кирпичная стена не будет выполнять функции опорной, а тут - часть веса перекрытия будет передаваться с монолитного перекрытия через балку на эту стену...
Нет. Кирпичная стенка (она же подпорная она же стена подвала) всего-лишь разгружает перекрытия первого этажа. Уменьшает пролет, экономит бетон и металл. Никакой конкретно нагрузки она не несет.
А без полочек профнастил не будет лежать на балке? Не понял смысла полок?
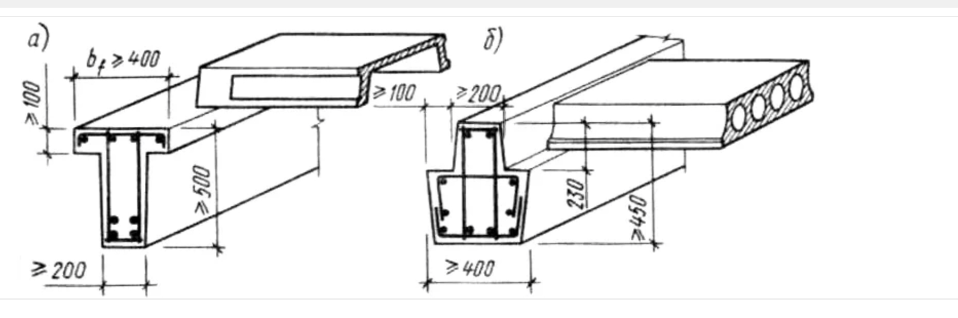
Экономия строительной высоты. Грамотному консультанту странно это не знать. Вот типичная форма балки сборных перекрытий (ригель)

Справа - хорошо. Слева - потеря высоты.
смысл профлиста как несъемной опалубки? Не проще было делать съемную?
Вопрос стоимости - профнастил (не путать с профлистом) - положил и забыл. Опалубки надо устанавливать, стойки там всякие, брусы и прочие недешевые в себе и монтаже приспособы. Я уже говорила об этом. К тому же профнастил (сталь, однако) снимает часть нагрузки с арматуры - уменьшая затраты на нее.
Разве саморезы не будут держаться в фанере 10?
Я принципиально в конструкциях не использую гвоздевое соединение (и его разновидности) на отрыв. Только «на срез» У Вас несчастные случаи на стройке были? У меня - нет.
насколько легко бруски будут выниматься из бетона, если не были обернуты пленкой...
Они завтра утром не будут выниматься из бетона. Они сами выпрыгнут. Сфоткаю )))
Narrenfreiheit
14.08.2023 в 20:41:31
Зачем тогда колонны, если часть веса не передается на них? :flirt Балка одним концом оперта на стену или нет? Опирание настила делают и та и эдак, а мысли читать я не умею. Если уж говорить о потере высоты - то балка там лишняя).
Профнастил мало что снимает по нагрузке, с учетом всей.
При чем тут гвозди и отрыв, если вопрос был про саморезы в фанере?
Авторизуйтесь или зарегистрируйтесь, чтобы оставить комментарий.
Присоединяйтесь к самому крупному DIY сообществу