Всех приветствую.Снова приступаю к ремонту с бетона и ряд моментов вызывает некоторое удивление, прошу совета.Исходные данные - двухкомнатная квартира, 57м2, по плану два санузла, но в квартире отсутствуют стояки ГВС и ХВС, только стояк полотенцесушителя (полипропиленовый).
В квартиру входит две трубы водоснабжения (тоже полипропилен), которые ведут в этажный узел водоразбора - первые два фото.Мне не понятно как организовать воду в двух помещениях с максимальным комфортом, чтобы не было такого, что при включении ПММ на кухне человека в душе кипятком ошпаривало.
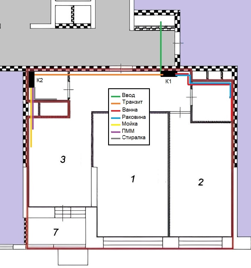
Вместо второго санузла предполагается кладовка с установкой в ней стиралки с сушилкой, набор потребителей на кухне и санузле стандартный.
Разводку по квартире точно буду делать сшитым полиэтиленом, да и разобрать полтора метра коридора чтобы переложить трубы до самых счетчиков не вижу проблемы.В качестве целевого состояния видел два коллекторных узла - один при входе в квартиру, другой в санузле у кухни.Прошу совета как лучше всего организовать.



