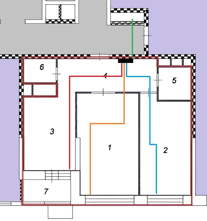
Всех приветствую.В квартиру из этажного узла входит две трубы отопления, которые через тройники ведут к трем радиаторам, нижнее подключение из пола. Обжато в целом прилично, без перекосов, гильзы сидят ровно и до конца, но так как это все будет залито стяжкой, то есть желание все-таки переделать, да и подключение хотелось бы из стены (уже так делал себе сам, все отлично).
Разводка по квартире точно будет сшитым полиэтиленом (16) с коллекторным узлом в квартире.
Оставлять ли участок трубы от застройщика пока не решил, но скорее всего разберу полтора метра коридора чтобы переложить трубы целиком. Набросал несколько вариантов трасс, прошу совета как лучше организовать.



